CALDAIA A PELLET

RISPARMIARE SUL RISCALDAMENTO SENZA RINUNCIARE ALLA PRATICITÀ.

Le caldaie a pellet, tramite la combustione del pellet, producono acqua calda per alimentare i termosifoni e/o i pannelli radianti a pavimento di tutta la casa.
Le caldaie a pellet possono essere collegate anche ad impianti di riscaldamento esistenti e lavorare in affiancamento a pannelli solari.


Con l’utilizzo di appositi kit, le caldaie a pellet possono produrre acqua calda sanitaria per i bagni e per la cucina, acqua calda che può anche essere accumulata in appositi bollitori per essere sempre disponibile alla temperatura desiderata.

Le caldaie a pellets garantiscono il massimo dell’autonomia in quanto oltre al serbatoio del pellet a bordo, possono essere collegate a serbatoi aggiuntivi esterni e a silos di grandi dimensioni, caricati anche a domicilio tramite autobotte.

Il pellet è un combustibile dai tanti vantaggi: 
è economico
 rispetto ai comuni combustibili, è ecologico perché costituito da segatura di legno la cui combustione è in equilibrio con l’ambiente ed è pratico perché consente di programmare il riscaldamento secondo le proprie esigenze

Le caldaie a pellet sono altamente tecnologiche, e garantiscono i più elevati standard di sicurezza.

Caldaia pellet

Disponibile
Caldaia biomassa

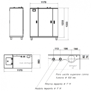
Caldaia pellet biomassa COMFORT ISOKALOR varie potenze

ISOKALOR srl
Da 2.470,00 €
Policombustibile: pellet – nocciolino. Stufa a pellet ad altissima efficienza con nuovo scambiatore ALADIN certificato e omologato.Un prodotto che garantisce un altissimo rendimento certificato proponendo anche la versione da locale caldaia. 11,0 kW – 16,0 kW – 20,0 kW – 24,0 kW – 29,0 kW – 35,0 kW – 50 kW
Filtra per
Marca
Di più... Di meno
Prezzo
Filtro
Prodotto aggiunto ai preferiti